Casa G.C.

Rome, 2020

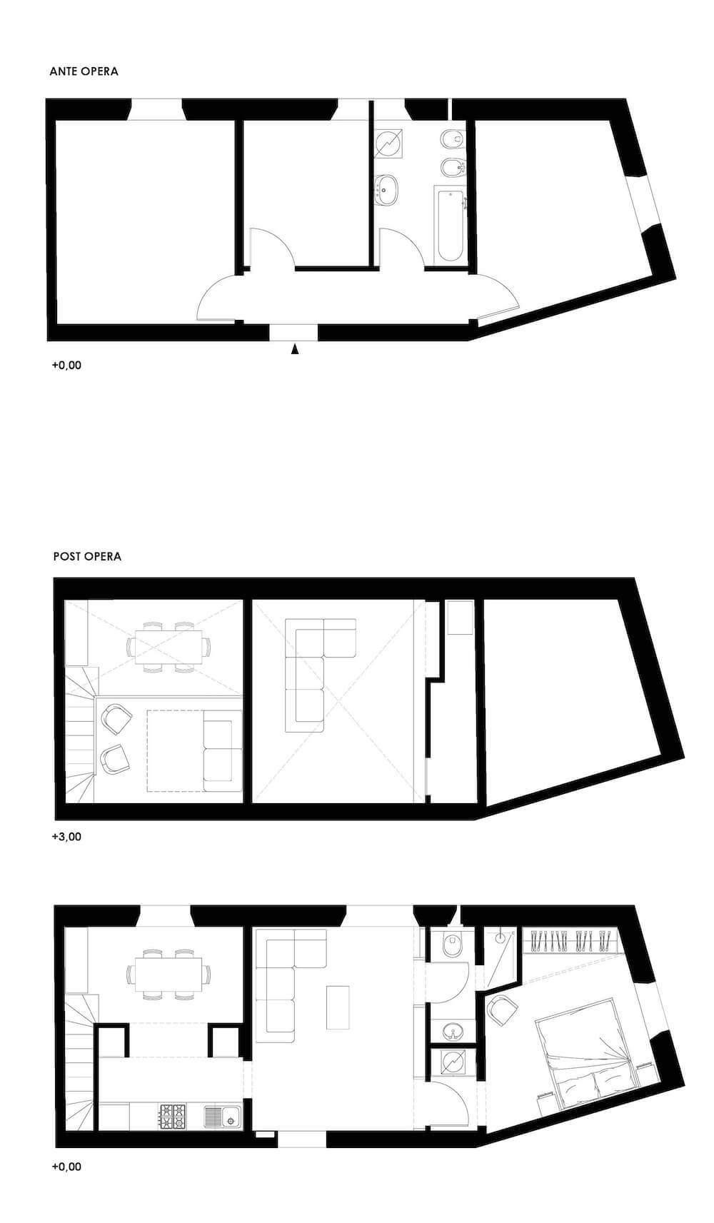
The project involves the complete renovation of an apartment located on the top floor in the center of Rome near Roma Termini station. The apartment is characterized by the presence of carry walls, which strongly conditioned us the functional distribution, after the demolition of the suspended ceiling an important height up to the pitched roof. The project creates three environments, each with different heights and functions and offers with its own characteristics spaces and dynamism in the perception of volume. The architectural project starts from the respect of the typology and, therefore, from the respect of the spirit of the place to reduce it, however, in the spirit of the time, therefore in the modernity.